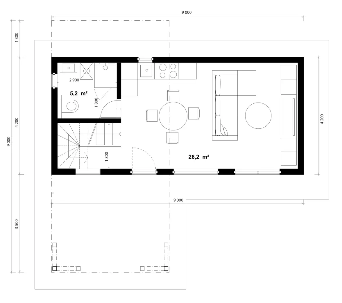
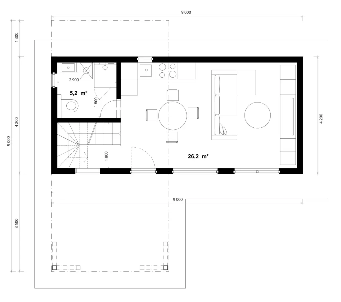
verbaute Fläche: 14,0x10,0m
EG: Wohnküche, 2 Zimmer, Lobby, 2 Bäder, Garderobe
Ein vollwertiger Wohnsitz für eine vierköpfige Familie, mit einem Badezimmer und separater Toilette im Obergeschoss um den Komfort zu erhöhen.
2 Terrassen
Zusätzlich zur überdachten Terrasse im Erdgeschoß, verfügt das Haus über eine weitere 20m² Terrasse im Obergeschoß, um den Tag perfekt zu nützen.
Versionen
Das
Haus
ist
architektonisch
so
gestaltet,
dass
es
mit
dem
Außenbereich
eine
gut
durchdachte
Einheit
bilden
kann
wobei
die
beiden
Terrassen,
Ausblicke
auf
die
Umgebung
ermöglichen.
Sie
benötigen
mehr
Fläche,
dann
kann
statt
der
Dachterrasse
ein
Wohnbereich
nach
Ihren
Vorstellungen
geschaffen werden.